basiskupplung
Basiskupplung Gerüstbau: Spart Montageaufwand und Kosten
Exklusive Kooperation
Josef Grund Gerüstbau und die MJ-Gerüst GmbH entwickelten gemeinsam eine neue Basiskupplung für den Gerüstbau. Die Idee kam von Stefan Grund von der Josef Grund Gerüstbau GmbH Erfurt, die Umsetzung von der MJ-Gerüst GmbH aus Plettenberg.
Das Ergebnis:
Die neue MJ Basiskupplung, die bei verschiedensten Anwendungen zu effektiven Lösungen und enormen Materialeinsparungen führt.
Basiskupplung - ein Beispiel
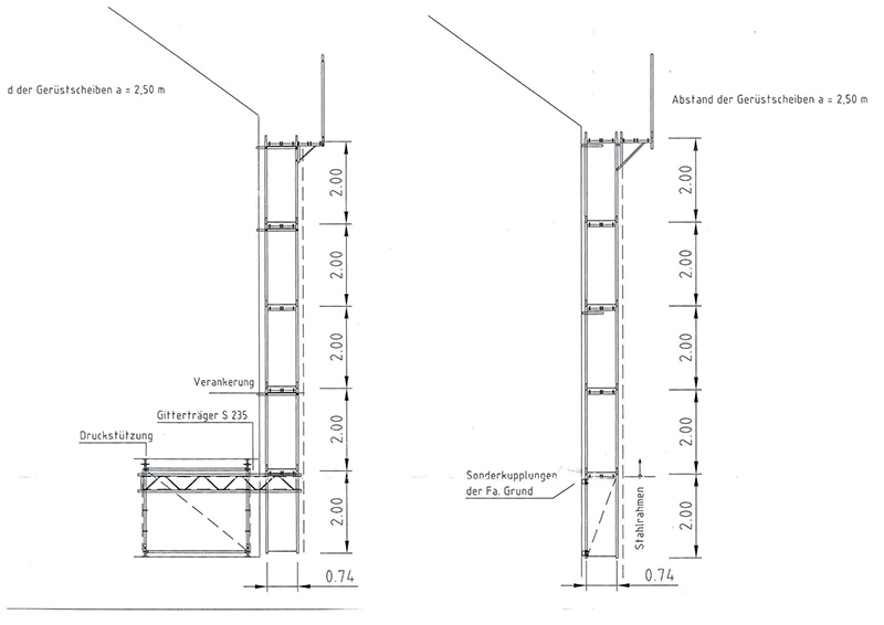
» Kirchensanierung bzw. nicht zu belastende oder vorhandene Untergründe. Bei Kirchensanierungen kommt es häufig vor, dass Anbauten am eigentlichen Kirchenschiff nicht die Stabilität aufweisen, um Lastabtragungen vom Gerüst aufzunehmen. Es müssen deshalb meist aufwändige Trägerkonstruktionen geschaffen werden, um die Gerüstaufbauten auf „sichere Füße“ zu stellen.
Die Lösung besteht in aller Regel aus Schwerlast-Gitterträger-Verbindungen, vertikal verstärkt mit Gerüstrohren, die über die Anbauten hinweg frei angebracht werden, um das darüber aufzubauende Gerüst sicher zu tragen.
Durch den Einsatz der MJ Basiskupplung für den Gerüstbau können hier Zeit (Montageaufwand) und Material (Investitionskosten) in erheblichem Umfang eingespart werden. Aus der Erfahrung heraus lässt sich der Montageaufwand bei Verwendung der MJ Basiskupplung um 75% reduzieren. Anstelle einer Gitterträger-Konstruktion wird die MJ Basiskupplung direkt mit dem Gebäude verbunden.
Genau wie bei der Gitterträgerkonstruktion auch, hängt die Art der Befestigung von der Gebäudefassade ab. Im Vergleich zur » Hängerüstung gestaltet sich die Wandplattenverankerung jedoch unproblematisch. Beim Einsatz der Kupplung sind keine Sonderbauteile notwendig, zum Einsatz kommen nur Systembauteile. Das Gerüst hängt komplett am Gebäude. Die Basiskupplung nimmt dabei die reinen Vertikallasten auf.
Kernstück der MJ Basiskupplung sind zwei parallel angebrachte Halbkupplungen, die auf einer T-Trägerplatte angeschweißt sind. An ihnen wird das Gerüst befestigt. Beim Einsatz der MJ Basiskupplung sind keine Sonderbauteile notwendig, zum Einsatz kommen nur Systembauteile.
Das Gerüst hängt komplett am Gebäude, die Basiskupplung nimmt dabei die reinen Vertikallasten auf. Die MJ Basiskupplung verfügt über eine Grundlagenstatik, die vom Ingenieurbüro Klimpel aus Bochum, Ansprechpartner Dipl.-Ing. Michael Klimpel, Mitglied im Fachausschuss Technik der Bundesinnung, gerechnet wurde. Die Grundlagenstatik reicht in aller Regel aus, um den statischen Anforderungen durch das abzutragende Gerüst gerecht zu werden. Diese Konstruktion ist keine Regelausführung der Zulassung, sondern kann nach statischem Nachweis bei der Lastklasse 3 unendlich fortgesetzt werden.
Ein weiterer Einsatzweck, bei dem sich die MJ Basiskupplung bewährt hat, sind Sanierungsarbeiten auf Flachdachbauten, bei denen gemäß §12 der „UVV Bauarbeiten“ ein » Seitenschutz nach DIN 4420-1 angebracht werden muss. Dabei wird an den MJ Basiskupplungen, die am oberen Gebäuderand seitlich befestigt werden, eine Rohr-Kupplungskonstruktion angebracht, die einen sicheren Seitenschutz bietet.
Auch hier liegen die Vorteile in der Material- und Kosteneinsparung, da auf den Einsatz von Gerüsten verzichtet werden kann. Hinzu kommt die freie Beweglichkeit der Arbeiter, die sich bis zur Attika ohne weitere Sicherheitsvorrichtungen bewegen können und während der gesamten Gerüstarbeiten „absturzgesichert“ sind und unbehindert arbeiten können.
Wir beraten Sie gerne über diese innovative Befestigung in der Gerüstkonstruktion!




